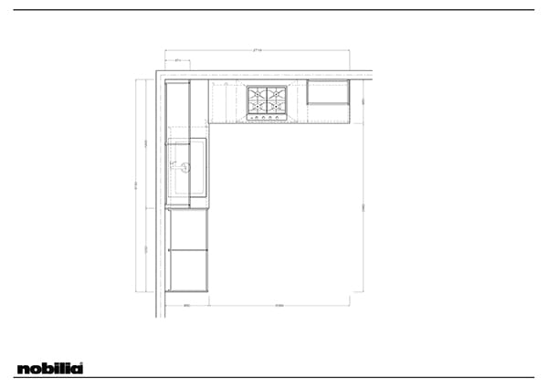
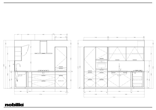
L型キッチン

※画像はプランに類似したイメージです。
キッチンスペック
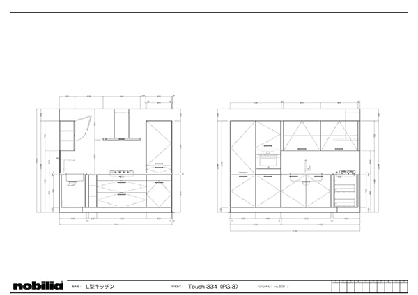
TOUCH 334
スレートグレー
スーパーマット
画像クリックで
別イメージを表示
ワークトップ

no.367
アーチザンオーク
スーパーマットのグレーと明るい木目の定番の組み合わせ。
落ち着いた雰囲気でホワイト系のキッチンパネルやクロスともよく合います。
L型キッチン特有の動線の良さを生かしつつ、近くにダイニングテーブルを置くなどすると、オープンキッチンとして魅力のあるレイアウトになりました。
キッチンユニット内にダストボックスを収納したり、ビルトインオーブンを採用する事でオープンキッチンのデザインを損ねません。ウォールユニットには折れ戸タイプの跳ね上がるドアで使いやすく収納力をアップ。さらに食器洗い機を追加するなどもお勧めです。
キッチンプラン詳細
家具概要
L型キッチン
W2719×D650
W3132×D650
H900mm
1,724,100円
壁面パネル &
ミッドユニット
285,400円
機器価格 例
(※1)
レンジフード
FEDL-953S
FED2D-515S(ARIAFINA)
310,100円
ガス機器
RD641STSA(Rinnai)
157,000円
ステンレスシンク
SH870-565ZWT-VB(トヨウラ)
100,000円
水栓金具
91355(DELTA)
49,500円
ビルトインオーブン
H7440BM(Miele)
450,000円
その他
(※2)
施工費・現場調査費・諸経費
190,000円の場合
運送費
60,000円の場合
* 価格は一例です *
【お値引を含み】
参考販売価格 2,788,000円
(税込 3,066,800円)
※1 ノビリアの輸入キッチンに定番の設備はありません。例として参考価格を入れてありますが、手配できるメーカーであればどんな設備でも構いません。価格は2026年2月のメーカー定価です。販売時期によって価格が異なる・廃盤などの可能性があります。
※2 施工費・現場調査費・諸経費は、地域・設備・階数などの条件により変動いたします。運送費は地域により異なります。発送地は岐阜からとなります。
ノビリアの輸入キッチンは
全てフリープランです。
間取り・ご予算・ご要望に応じて、実現可能なプランを具体的にご提案いたします。
まずはお気軽にご相談ください。
サンプルレイアウト
nobiliaへ
新築やリフォームでのお問い合わせや、
新規お見積り依頼・
他社との比較見積もり依頼など
Webからご相談いただけます。




























